模具零件图的画法,看完都会了!
已有人阅读此文 - -⑴ 图型的绘图方式
图型的绘图方式 虽依每个人习惯性而各有不同,下列的见解及提议,可供参考。
① 图型的不绘标准。画零件图的目地是为了更好地体现零件的结构,为生产加工该零件出示图例表明。一切非标件、或虽说标件但仍需进一步生产加工的零件均需绘图零件图。以象1-75冲孔机落料冲压模具为例子,上模座20虽是标件,但仍必须在其上边生产加工溢料孔、螺丝焊盘及销钉孔,因而要画零件图;定位销、导柱及螺丝销钉等零件是标件都不需进一步生产加工,因而可以不画零件图。
② 零件图的主视图布局。为确保绘图零件图的准确性,提议按安装部位画零件图,但轴类零件按生产加工部位(一般枢轴线为水准布局)。以象1-75所显示的凹模18为例子,cad零件图中该零件的正视图体现了薄厚方位的构造,顶视图则为原平面图内的构造状况,如图所示1-76所显示,在绘该凹模18的零件图时,提议就按cad零件图上的情况来布局零件图的主视图。实践经验:那样能合理地防止投射关联绘图的不正确。
③ 零件图的绘图流程。绘图模貝cad零件图后,应对比cad零件图来拆画零件图。强烈推荐绘图流程以下:
绘图零件图时,尺寸线可先引出来,有关尺寸后标注。图1-75所显示,模貝可分成工作中零件、輔助预制构件以及他零件三绝大多数。在画零件图时,绘图的次序一般选用“工作中零件优先选择,自下高于一切”的流程开展。如图所示1-75所显示,凹模18是工作中零件能够 最先绘制,如图所示1-76所显示,

图1-76 凹模零件图
绘完凹模18后,对比cad零件图,倒料板17与凹模18有关,其中孔与凹模洞边完全一致,内螺纹尺寸应该比凹模洞边单侧大出0.5毫米,依据这一关联绘制倒料板17,如图所示1-85所显示;下面再画冲孔机凸模11、 13 及落料凸模7(如图所示1-80所显示);随后画凸模固定不动板10,如图所示1-77所显示,再对比模貝安装绘画出垫块9(图1-78)和下模座1(图1-91)。在画下模一部分的零件图时,应留意历经下模座1、上垫块9、冲孔机凸模固定不动板10及凹模18等模版上的螺丝、销钉孔的部位应一致。
在画下模一部分的零件图时,一般选用“工作中零件优先选择,从上向下”的流程开展。对比凹模先画2个导料板14,如图所示1-79所显示;随后对比cad零件图上的安装关联,画始用挡料销钉孔,再画承料板16;在凹模上再加上挡料销钉孔。在画下模的零件图时,也应留意历经导料板14、凹模18及上模座1上的螺丝与销孔部位,另外上模座20上溢料孔的部位要与凹模的孔距一致。依照所述流程,依据安装关联对零件样子的规定,绘图各零件图的图型,能很容 异地恰当绘图出模具零件的图型,并使之与安装关联彻底符合。
⑵ 尺寸标注方式
从业冲压模具的人都是有那样的感受标注尺寸是一大难题。殊不知新手中普遍现象一种“重图型、轻尺寸标注”的趋向,在零件图上所标注的尺寸经常会出现不正确较多或标注错乱的状况;乃至出現丝孔销钉孔移位,导致模貝没法安装的错误,漏尺寸漏尺寸公差值等状况更加广泛。因而开展尺寸标注时,提议依据cad零件图上的安装关联,用“联络对比”的方式 标注尺寸,可合理提升尺寸标注的准确率,具备不错的合理化。
① 尺寸的布局方式 。针对新手出現尺寸标注混乱、无逻辑性等状况,主要是尺寸的布局方式 不善。要应用全部标注的尺寸在图表面布局有效、条理清楚,务必非常好地运筹帷幄。图1-77所显示的凸模固定不动板零件图中,现有近24个尺寸与4个几何公差尺寸的标注,在其中顶视图左边与正下方布局螺丝、销钉孔的孔位尺寸及模版的外观设计直徑尺寸;內部则布局孔形的尺寸,尽可能分开标注防止交叉式。如图所示1-75所显示正视图上布局了冲圆洞凸模11和冲圆孔凸模13及落料凸模7的固定不动孔样子尺寸及模版的薄厚等尺寸;几何公差尺寸插空标注。这类布局方式 有效地运用了零件图形周边的空缺,既条理清楚,又便捷读图。
② 尺寸标注的构思。要使尺寸标注恰当,就需要掌握尺寸标注的“构思”。前边规定绘图全部零件图的图型而先不标注一切尺寸,便是为了更好地在标注尺寸时可以统筹协调,用一种恰当的“构思”来恰当地标注尺寸。下边以象1-75冲孔机落料冲压模具为例子论述尺寸标注的“构思”。
● 标注工作中零件的刀口尺寸。工作中零件刀口尺寸的标注根据生产制造加工工艺的不一样有二种方式。一是交换法生产制造,则凸模和凹模各自标注公称压力尺寸和尺寸公差;二是相互配合法生产制造,则标准件标注公称压力尺寸及尺寸公差,而相零配件标注公称压力尺寸和与标准件的相互配合空隙。
● 标注有关零件的有关尺寸。有关尺寸恰当,各模具零件才可以安装构成一套模貝。在上模一部分,有关尺寸的标注提议依照“由上而下”的次序开展。先从工作中零件凹模18逐渐,观查cad零件图1-75,与该零件模貝有关的零件有内六角螺钉19、销钉23、沉头螺栓25、导料板14,需从剖析这种相关分析下手开展有关尺寸的标注。
凹模18与销钉23成H7/m6相互配合,故销钉孔直徑为Ф8H7。销钉23与凹模18、上模座20成H7/m6相互配合,因而上模座20上销钉孔直徑也应是Ф8H7,另外孔位为40和101,可在下模座20的零件图上标明这种尺寸。
凹模18与4个M8的内六角螺钉19是外螺纹连接 ,因而凹模18的工程图纸上相匹配螺纹孔应标注为4×M8;螺丝由上模座拧入,故相对的工程图纸上应该马上标注4×M8,的螺纹孔距均为76与101。
凹模18还与导料板14、27有关。从安装关联知:2个导料板与凹模各用2个沉头螺栓25及2个销钉22联接,因此 在凹模需要标明4个M8的沉头螺栓25的螺纹孔,与4个M8的内六角螺钉19的孔一起能够 标注为8×M8;凹模上的四个销钉孔能够 各自标注2×Ф8H7还可以一起标成4×Ф8H7;与之相匹配的导料板的标注如图所示1-79所显示。
标注完凹模与凸模有关零件上的有关尺寸后,再标注凸模固定不动板10上有关零件的有关尺寸,依次类推直到下模中全部零件的有关尺寸标注结束。下模一部分的螺丝与销钉根据垫块的孔时多边需有0.5~毫米的空隙,因而垫块9上相对的焊盘直徑为Ф8mm,也应在相对的样图上标明。
再举一例进一步表明有关尺寸的标注。cad零件图中的冲孔机凸模11、13与冲孔机凸模固定不动板10有关;在其中冲孔机凸模固定不动板10相对处为一起吊固定不动阶梯孔,阶梯深层与冲圆洞凸模起吊段等高线,即同是3毫米,直径应该比凸模阶梯直徑大出0.5~毫米,为Ф17mm;Ф14mm的孔与凸模固定不动板成H7/m6的相互配合,即冲孔机凸模固定不动板10上的相匹配孔直徑应是Ф14mm。所述尺寸应先后另外标注。冲孔机凸模11、13与落料凸模7的零件图如图所示1-80所显示。
模貝下模一部分的有关尺寸标注可按“由上而下”的次序标注。先标注弹压倒料板17与挡料钉21,弹压倒料板与倒料螺丝4中间的有关尺寸;再标注凸凹模固定不动板6与凸凹模7、倒料螺丝8、拧紧螺丝3、圆柱销4中间的有关尺寸,一样方式 直到全部有关尺寸标注结束。
● 补齐别的尺寸及技术标准。这一环节可逐一零件开展,先补齐别的尺寸,比如轮廊尺寸尺寸、部位尺寸等;再标注各生产加工面的粗糙度规定及倒圆角、圆弧的生产加工状况,最终是选料及热处理工艺,并对本零件开展取名等。
尺寸标注中,一般五金模具零件粗糙度值选择可参考以下经验:
a五金模具的上、上模座,上、下垫块,凸、凹模固定不动板,倒料板,脱料板,打料板与顶料板等零件粗糙度Ra值一般 为1.6~0.8µm。座体零件附近粗糙度Ra值一般 为6.3~3.2µm。
b五金模具的凸模与凹模工作台面粗糙度Ra值一般 为0.8~0.4µm;凸模与凹模固定不动位置及与之相互配合的模版孔粗糙度Ra值一般 为3.2~O.8µm。
c倒料(顶料)零件与凸模(凹模)相互配合面的粗糙度Ra值一般 为6.3~3.2µm。
d地脚螺栓或别的零件的非相互配合焊盘面粗糙度Ra值一般 为12.5~6.3µm。销钉孔面粗糙度Ra值一般 为0.8µm。
③ 别的尺寸标注难题
● 复杂性孔的尺寸标注。样子越繁杂,尺寸就越大,从而导致的标注艰难是新手设计方案冲压模具时的关键阻碍。如图所示1-77所显示的凸模固定不动板零件,因洞边样子的尺寸多种多样而出現标注艰难。这时有两个解决方案:一是变大标注法,将凹模零件图适度变大后再标注尺寸;二是移除变大标注法。将繁杂的洞边型孔独立挪到零件图外边的合适部位,再独立标注型孔尺寸,而零件图内仅标注型孔图型的部位尺寸就可以。
● 其他模版上型孔的配置标注。在开展凹模洞边的刀口尺寸测算时,如何处理半经尺寸R,实践活动中视对R的精确测量方式及其应用规定而定,若有能精准测量R值的测量仪器,则需对R值开展刀口尺寸的测算;如仅有水平尺等基本测量仪器,则可在凹模图上标注原注R值。
因为凸模外观设计、凹模洞边以及他模版上相对的型孔全是在同一台线切割机床上放同一生产加工程序流程,依据线切割机床的“空隙全自动赔偿”作用使其在线切割机床的割制全过程中全自动配置一定的空隙而成,因而别的模版上型孔可按所述配置生产加工的特性开展标注,既简易明确,又合乎模具生产的具体。假如凸模固定不动模版按配置法特性开展标注时,仅需在模版内标注型孔的部位尺寸,而型孔的样子尺寸则在样图的适度部位充注:“型孔尺寸按凸模的具体尺寸成0.02mm的过渡配合”就可以。

图1-81 冲圆洞凸模零件图

图1-82 冲圆孔凸模零件图

图1-83 落料凸模零件图

图1-84 凸模固定不动板零件图

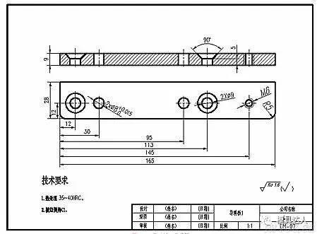
图1-85 倒料板零件图

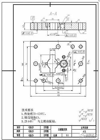
图1-86 落料凹模零件图

图1-87 垫块零件图

图1-88 承料板零件图

图 1-89 导料板1零件图

图1-90 导料板2零件图

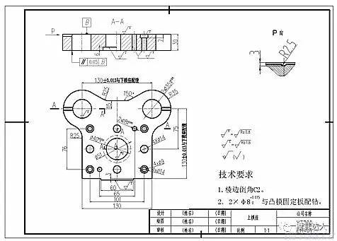
图1-91 下模座零件图

图1-92 上模座零件图
来源于:模貝人杂志期刊

